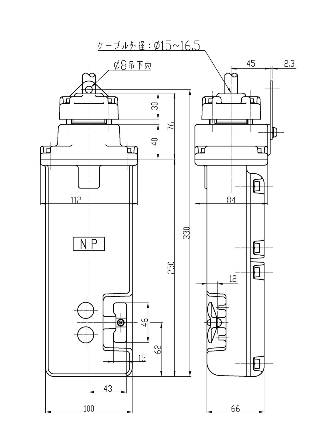
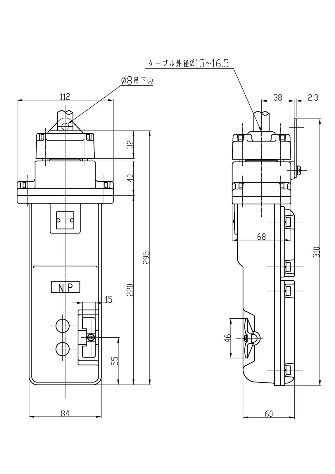
防爆ペンダントスイッチ(耐圧防爆)

ペンダントスイッチは、ホイストクレーンなどの機械を操作するための装置です。
このペンダントスイッチは、耐圧防爆構造(d2G4)であり、爆発性ガスが発生する可能性がある場所で使用が可能です。
坂本電機製作所は耐圧防爆(d2G4)の構造で移動式のペンダントスイッチを製造する国内唯一のメーカーです。
ラインナップ
お客様の使用用途に応じて、製作いたします。
接点構成、操作文字の内容、ケーブル引込口のサイズ(ケーブル仕上がり外径)など
RXFV-2
(2接点、文字(上下)など)
RXFV-4
(4接点、文字(上下右左)など)
RXFV-6
(6点式、文字(上下東西南北)など)
RXFV-8
(8接点、文字(入切上下東西南北)など)
仕様
| 項目 | 内容 | ||||
|---|---|---|---|---|---|
| RXFV-2 | RXFV-4 | RXFV-6 | RXFV-8 | ||
| 接点部 | 使用定格 | AC220V/5A AC440V/3A | |||
| 接点部 | 接点数 | 2接点 | 4接点 | 6接点 | 8接点 |
| 接点構成 | (1a+1a)(標準) | 2-(1a+1a)(標準) | 3-(1a+1a)(標準) | (1a+1b)、3-(1a+1a) (標準) |
|
| 本体部 | ケース | アルミ合金 | |||
| 塗装色 | 10YR7/14近似 | ||||
| ケーブル引込口 | φ15~16.5(標準) | φ18~19.5(標準) | φ15~16.5 +φ18~19.5(標準) | 2-φ18~19.5(標準) | |
| 共通仕様 | 防爆構造 | d2G4 | |||
| 使用周囲温度 | -10℃~+40℃ (氷結が無いこと) | ||||
| 取付ねじ | φ8吊下穴 | ||||
| 絶縁耐力 | AC2000V 1min. | ||||
| 絶縁抵抗 | 100MΩ以上 (DC500Vメガー) | ||||
バリエーション(防雨形、IPX4相当)
お客様の使用環境に応じて、防雨形の対応も可能です。
RXFV-4W
(4接点、防雨形IPX4)
RXFV-8W
(8接点、防雨形IPX4)
資料ダウンロード
CAD図と防爆検定証は登録制になります。
会員限定資料についてはログインしてからダウンロードしてください。
株式会社